Zum Hauptinhalt springen Zur Suche springen Zur Hauptnavigation springen

Kaminanlage Nordpeis Davos A Low 8,9 kW

Produktinformationen "Kaminanlage Nordpeis Davos A Low 8,9 kW"

Davos A Low ist mit einer 2-seitigen Scheibe ausgestattet und bietet so von zwei Seiten freie Sicht auf die Flammen. Die Tür ist eine Drehtür, das Seitenglas ist feststehend. Isolierende Doppelverglasung.

Wählen Sie zwischen einer Eckscheibe über die linke oder über die rechte Ecke.


 

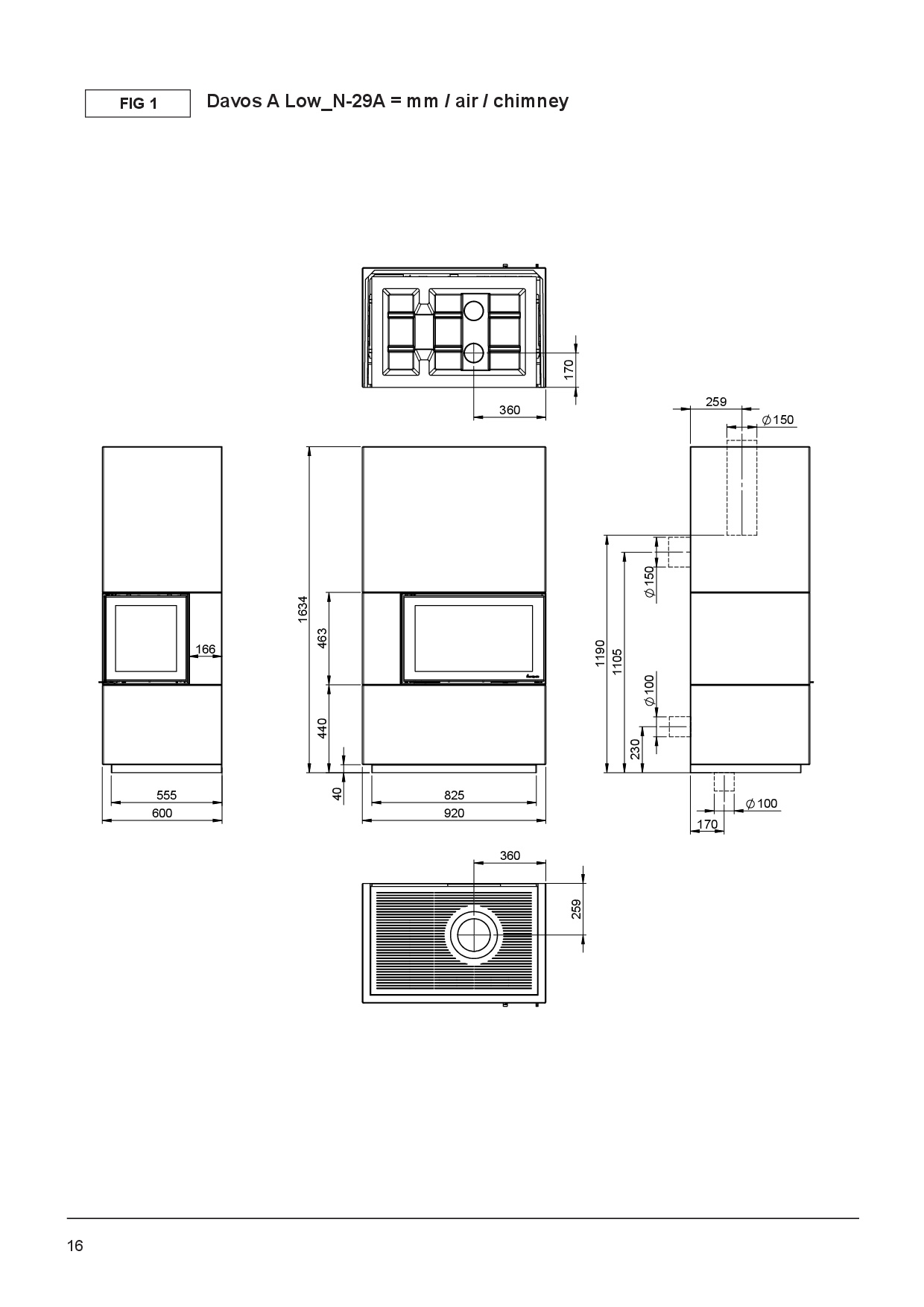
Technische Informationen:

  • Nennleistung: 8,9 kW
  • Betriebsbereich: 4-12 kW
  • Gewicht : 403 kg
  • Höhe x Breite x Tiefe: 1634 x 920 x 600 mm 
  • Rauchrohranschluss: hinten/oben/seitl. Ø 150mm
  • Anschlusshöhe oben 1190
  • Anschlusshöhe hinten 1105
  • externe Zuluft: ja ( unten/hinten)  Ø 100mm
  • Abstand zu brennbarer Seitenwand/Hinterwand: 800/00mm, siehe Montageanleitung
  • Abgastemperatur Stutzen: 269°C
  • BImschV 1+2
  • Wirkungsgrad: 82,0 %
  • Feinstaub: 26 mg
  • Holzscheitlänge: 50cm
  • Mehrfachbelegeung: ja

0 von 0 Bewertungen

Durchschnittliche Bewertung von 0 von 5 Sternen

Bewerten Sie dieses Produkt!

Teilen Sie Ihre Erfahrungen mit anderen Kunden.


Loading...
Dateien werden hochgeladen, bitte warten...